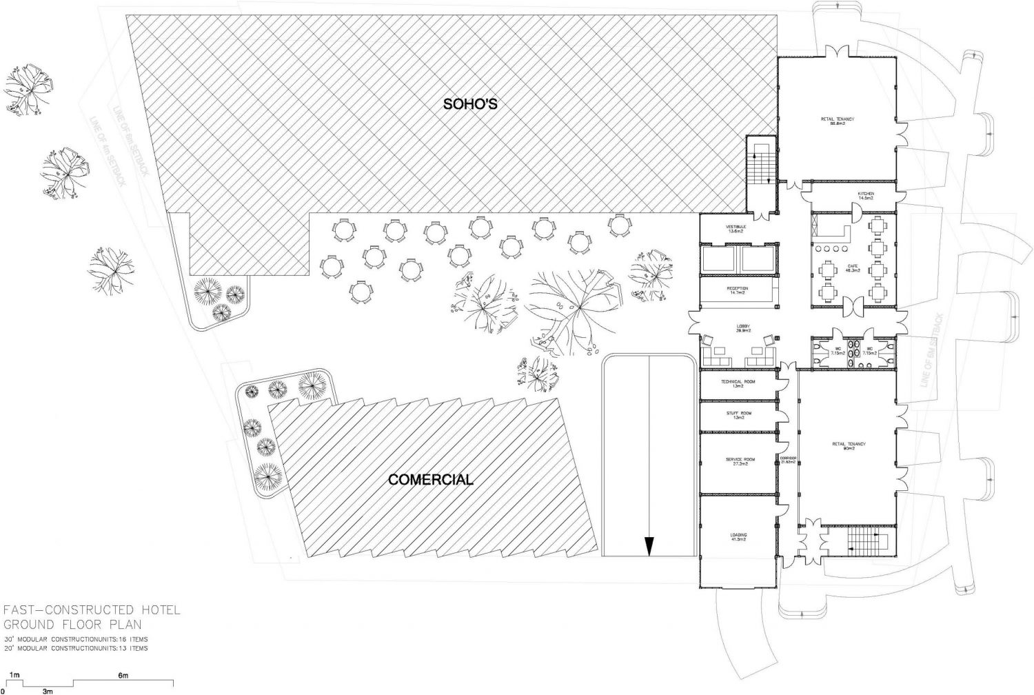
Architectural and interior design concept proposal for prefab container constructed, budget business class hotel.
STATUS:
Concept, can be adjusted to any climate and other necessary condition, locally developed and build.
ABOUT:
Futuristic oriented Architecture and Interior design project concept for the budget-business class hotel. Designed for Malaysia but oriented on re-development and adjustment to any climate and codes.
DETAILS:
Interior materials are simple, plasterboard construction, veneered mdf, in combination with organic wall papers and mirrored st.steel designed pattern. For the facade I choose the satin outdoor paint, for the container original structure. It also creates the additional layer of insulation. And decoration is perforated stainless steel — easy to find the supply, ultimate futuristic style element, and also creates the additional shade for the hot Malaysian climate.
Project is looking for investment and co-partners for the future development.