Affordable private Art-residence, sustainable design, resistant to high level of hurricane activities.
STATUS:
Project is looking for CO-Investors.
ABOUT:
Designed as the local Florida project to develop, oriented on the specifics of local climate, natural environment, and modern flow of fine Art, interpenetrated into the Green Architecture, actively supported by local communities, as a cultural aspect of urban living.
DETAILS:
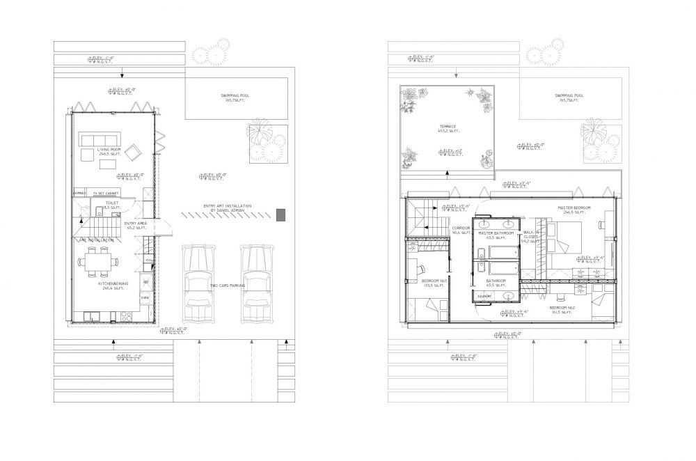
For the following two-storey house of 3 bedrooms and 2 bathrooms, we use 5 units of 40″ h.q. prefabbed shipping containers, connected with each other in special patented way to encourage the sustainability. Florida House Prefab is compact, functional, environmental friendly unit, fully supplied by solar energy. It has changeability to be transformed and grown with the family, as needed. Building is able to collect and re-filter the rainwater, and use it for sanitary needs. Florida House Prefab considered to be built, as an organic extension of local natural environment. Intervention happens through taken the picture of the surrounded nature, and inserting it into the kinetic photo sculpture, which while being statistic, gives the sense of 3d dimensional movement of the perception of the building. House becomes invisible. The Art work designed by Miami Artist Daniel Adrian. It becomes the main Architectural element of the exterior and the interior look of the building.
Project is looking for investment and co-partners for the future development.